[ΠΠ½Π½Π° ΠΡΠΌΠ°Π½] ΠΠ²ΡΠΎΡΡΠΊΠΈΠ΅ ΡΡΠΎΠΊΠΈ ΠΏΠΎ ΠΎΡΠ½ΠΎΠ²Π°ΠΌ AutoCAD (2023)
[ΠΠ½Π½Π° ΠΡΠΌΠ°Π½] ΠΠ²ΡΠΎΡΡΠΊΠΈΠ΅ ΡΡΠΎΠΊΠΈ ΠΏΠΎ ΠΎΡΠ½ΠΎΠ²Π°ΠΌ AutoCAD (2023)
Β«ΠΠ°ΠΊ Π½Π°ΡΠ΅ΡΡΠΈΡΡ ΠΈΠ½ΡΠ΅ΡΡΠ΅ΡΠ½ΡΠΉ ΠΏΠ»Π°Π½ ΠΈ Π½Π΅ ΠΏΡΠΈΡ Π°Π½ΡΡΡ Π² ΠΏΡΠΎΡΠ΅ΡΡΠ΅Β»
2 ΠΎΠ½Π»Π°ΠΉΠ½ Π²Π΅Π±ΠΈΠ½Π°Ρ-ΡΡΠΎΠΊΠ° Π² ZOOM Π΄Π»Ρ Π²ΡΠ΅Ρ , ΠΊΡΠΎ Ρ ΠΎΡΠ΅Ρ Π½Π°ΡΡΠΈΡΡΡΡ ΡΠ΅ΡΡΠΈΡΡ Π² AutoCAD.
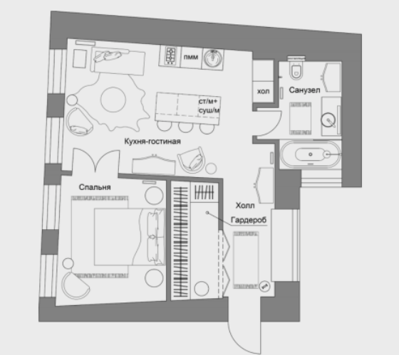
ΠΠ½ΡΡΡΡΠΌΠ΅Π½ΡΡ AutoCAD ΠΈ ΡΠ°Π±ΠΎΡΡ Π² Π½Π΅ΠΌ Π±ΡΠ΄Π΅ΠΌ ΡΠ°ΡΡΠΌΠ°ΡΡΠΈΠ²Π°ΡΡ Π½Π° ΠΏΡΠΈΠΌΠ΅ΡΠ΅ ΡΠ΅ΡΡΠ΅ΠΆΠ° ΠΎΠ΄Π½ΠΎΠΊΠΎΠΌΠ½Π°ΡΠ½ΠΎΠΉ ΠΊΠ²Π°ΡΡΠΈΡΡ.
Π£ΡΠΎΠΊΠΈ ΠΏΡΠΎΠ²Π΅Π΄Π΅Ρ ΡΠΎΡΡΡΠ΄Π½ΠΈΠΊ Π΄ΠΈΠ·Π°ΠΉΠ½-ΡΡΡΠ΄ΠΈΠΈ Β«ΠΠ°ΡΡΠ΅ΡΡΠΊΠ°Ρ ΠΠ½Π½Ρ ΠΡΠΌΠ°Π½Β».
Π£ΡΠΎΠΊ 1. ΠΠ°ΠΊ Ρ ΠΏΠΎΠΌΠΎΡΡΡ AutoCAD:
Π½Π°ΡΠ΅ΡΡΠΈΡΡ ΠΏΠ»Π°Π½ ΠΊΠ²Π°ΡΡΠΈΡΡ ΠΏΠΎ ΡΠ΄Π΅Π»Π°Π½Π½ΡΠΌ Π·Π°ΠΌΠ΅ΡΠ°ΠΌ;
ΡΠ°ΡΡΡΠ°Π²ΠΈΡΡ ΠΌΠ΅Π±Π΅Π»Ρ;
Π½Π°ΡΠ΅ΡΡΠΈΡΡ ΡΠ°Π·Π²Π΅ΡΡΠΊΡ;
ΡΠΎΡ ΡΠ°Π½ΠΈΡΡ ΡΠ΅ΡΡΠ΅ΠΆΠΈ, ΡΡΠΎΠ±Ρ ΡΠ°ΡΠΏΠ΅ΡΠ°ΡΠ°ΡΡ ΠΈΡ , ΠΏΠ΅ΡΠ΅Π΄Π°ΡΡ ΡΡΡΠΎΠΈΡΠ΅Π»ΡΠΌ ΠΈΠ»ΠΈ ΠΏΠΎΠΊΠ°Π·Π°ΡΡ Π·Π°ΠΊΠ°Π·ΡΠΈΠΊΡ.
Π£ΡΠΎΠΊ 2. ΠΡΠ²Π΅ΡΡ Π½Π° Π²ΠΎΠΏΡΠΎΡΡ ΠΏΠΎ ΡΠ°Π±ΠΎΡΠ΅ Ρ AutoCAD Π΄Π»Ρ ΡΠΎΠ·Π΄Π°Π½ΠΈΡ ΡΠ΅ΡΡΠ΅ΠΆΠ΅ΠΉ ΠΈ ΡΠ°Π·Π²Π΅ΡΡΠΎΠΊ.
Β«ΠΠ°ΠΊ Π½Π°ΡΠ΅ΡΡΠΈΡΡ ΠΈΠ½ΡΠ΅ΡΡΠ΅ΡΠ½ΡΠΉ ΠΏΠ»Π°Π½ ΠΈ Π½Π΅ ΠΏΡΠΈΡ Π°Π½ΡΡΡ Π² ΠΏΡΠΎΡΠ΅ΡΡΠ΅Β»
2 ΠΎΠ½Π»Π°ΠΉΠ½ Π²Π΅Π±ΠΈΠ½Π°Ρ-ΡΡΠΎΠΊΠ° Π² ZOOM Π΄Π»Ρ Π²ΡΠ΅Ρ , ΠΊΡΠΎ Ρ ΠΎΡΠ΅Ρ Π½Π°ΡΡΠΈΡΡΡΡ ΡΠ΅ΡΡΠΈΡΡ Π² AutoCAD.
ΠΠ½ΡΡΡΡΠΌΠ΅Π½ΡΡ AutoCAD ΠΈ ΡΠ°Π±ΠΎΡΡ Π² Π½Π΅ΠΌ Π±ΡΠ΄Π΅ΠΌ ΡΠ°ΡΡΠΌΠ°ΡΡΠΈΠ²Π°ΡΡ Π½Π° ΠΏΡΠΈΠΌΠ΅ΡΠ΅ ΡΠ΅ΡΡΠ΅ΠΆΠ° ΠΎΠ΄Π½ΠΎΠΊΠΎΠΌΠ½Π°ΡΠ½ΠΎΠΉ ΠΊΠ²Π°ΡΡΠΈΡΡ.
Π£ΡΠΎΠΊΠΈ ΠΏΡΠΎΠ²Π΅Π΄Π΅Ρ ΡΠΎΡΡΡΠ΄Π½ΠΈΠΊ Π΄ΠΈΠ·Π°ΠΉΠ½-ΡΡΡΠ΄ΠΈΠΈ Β«ΠΠ°ΡΡΠ΅ΡΡΠΊΠ°Ρ ΠΠ½Π½Ρ ΠΡΠΌΠ°Π½Β».
Π£ΡΠΎΠΊ 1. ΠΠ°ΠΊ Ρ ΠΏΠΎΠΌΠΎΡΡΡ AutoCAD:
Π½Π°ΡΠ΅ΡΡΠΈΡΡ ΠΏΠ»Π°Π½ ΠΊΠ²Π°ΡΡΠΈΡΡ ΠΏΠΎ ΡΠ΄Π΅Π»Π°Π½Π½ΡΠΌ Π·Π°ΠΌΠ΅ΡΠ°ΠΌ;
ΡΠ°ΡΡΡΠ°Π²ΠΈΡΡ ΠΌΠ΅Π±Π΅Π»Ρ;
Π½Π°ΡΠ΅ΡΡΠΈΡΡ ΡΠ°Π·Π²Π΅ΡΡΠΊΡ;
ΡΠΎΡ ΡΠ°Π½ΠΈΡΡ ΡΠ΅ΡΡΠ΅ΠΆΠΈ, ΡΡΠΎΠ±Ρ ΡΠ°ΡΠΏΠ΅ΡΠ°ΡΠ°ΡΡ ΠΈΡ , ΠΏΠ΅ΡΠ΅Π΄Π°ΡΡ ΡΡΡΠΎΠΈΡΠ΅Π»ΡΠΌ ΠΈΠ»ΠΈ ΠΏΠΎΠΊΠ°Π·Π°ΡΡ Π·Π°ΠΊΠ°Π·ΡΠΈΠΊΡ.
Π£ΡΠΎΠΊ 2. ΠΡΠ²Π΅ΡΡ Π½Π° Π²ΠΎΠΏΡΠΎΡΡ ΠΏΠΎ ΡΠ°Π±ΠΎΡΠ΅ Ρ AutoCAD Π΄Π»Ρ ΡΠΎΠ·Π΄Π°Π½ΠΈΡ ΡΠ΅ΡΡΠ΅ΠΆΠ΅ΠΉ ΠΈ ΡΠ°Π·Π²Π΅ΡΡΠΎΠΊ.
favorite
0
star
0
